Haus M - Bauphase
Hiltenfingen | 2022-23
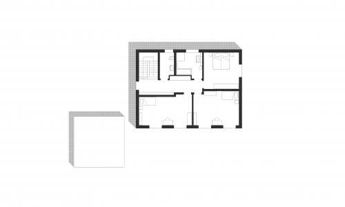
Ganz im Sinne der Nachverdichtung baut eine junge Familie auf dem Grundstück des elterlichen Wohnhauses ein Einfamilienhaus. Das einstöckige Gebäude öffnet sich im Erdgeschoss über eine bodentiefe Verglasung mit Schiebetür zum Garten hin und bietet im Obergeschoss großzügige Rückzugsräume für alle Familienmitglieder.
Besonderer Wert wurde bei der Planung auf die Möglichkeit einer späteren Unterteilung des Gebäudes in zwei separate Wohneinheiten gelegt, um das Haus auch nach dem Auszug der Kinder weiterhin vollständig nutzen und den neuen Lebensumständen anpassen zu können.
Sowohl der Bauherrschaft als auch uns war die Umsetzung einer rezyklierbaren Bauweise mit wohngesunden Materialien wichtig. Durch die Nutzung des Grundwassers kann das Gebäude im Sommer passiv gekühlt und durch Einsatz einer Grundwasserwärmepumpe im Winter effizient beheizt werden. Mithilfe einer Photovoltaikanlage mit Batteriespeicher wird zusätzlich eine möglichst große Unabhängigkeit erreicht. Durch eine zentrale Zu- und Abluftanlage mit Wärmerückgewinnung wird eine optimale Raumluftqualität gewährleistet.


